
1. Проверьте состояние фрикционных накладок диска сцепления и при наличии на них следов масла или механических повреждений замените диск сцепления.
Внимание! Незначительные загрязнения удалите мелкозернистой наждачной бумагой.
2. Проверьте надежность заклепочных соединений фрикционных накладок к диску сцепления. При наличии дефектов замените диск сцепления.

3. Проверьте выступание фрикционных накладок над головками заклепок. Если выступание меньше допустимого, замените диск сцепления.
Выступание: 0,3 мм

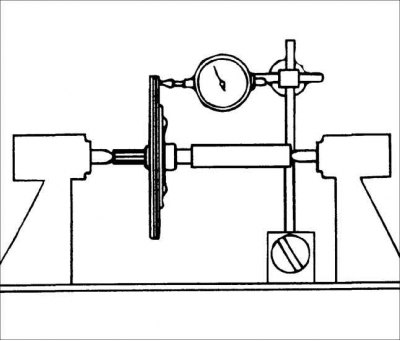
4. Установите диск сцепления на оправке в центрах и индикатором часового типа измерьте его биение. Если биение выше допустимого, замените диск сцепления.
- Осевое биение: 0,7 мм
- Радиальное биение: 1,0 мм
5. Проверьте диск сцепления на отсутствие ржавчины в шлицах. При наличии ржавчины, удалите ее.
Установка

1. Установите диск сцепления и отцентрируйте его специальной оправкой ОК130 160 010.
Внимание! Совместите метки на маховике и кожухе сцепления, нанесенные перед снятием.
2. Установите кожух сцепления с нажимным диском на направляющие штифты маховика.

3. Постепенно в диагональной последовательности и в определенном порядке затяните болты крепления маховика.
Момент затяжки: 18–26 Н·м
4. Снимите специальную оправку ОК130 160 010.
Внимание! Перед установкой коробки передач очистите шлицы в ступице диска сцепления и нанесите на них тонкий слой смазки на основе дисульфида молибдена.
5.Установите коробку передач.
